Your Data Center Experts
Peterson Power Systems is the data center industry's trusted supplier for Cat engines and accessories. We have delivered 1K+ generator sets (ranging from 2.5MW to 4MW) to data centers throughout North America. We understand the unique needs of major hyper-scale clients—this segment comprises the majority of our new large engine deliveries.

End-to-End Management—The Mission Critical Team
Peterson founded the Mission Critical team in 2013. This team is dedicated to supporting data center projects in North America. The Mission Critical team owns all project phases, ensuring their success:
- The dedicated account manager owns the account
- The project planner owns the schedule
- The engineering team owns the design
- The project management team owns the plan
Equipment Offering
We offer modular solutions that meet any site's needs: ambient requirements (temperature, elevation, snow, dust), seismic requirements, tank sizing, AHJ requirements by region, emissions aftertreatment, and sound attenuation.
Our in-house engineering and design teams deliver products with consistent footprints, equipment layouts, performance, electrical schematics for both control and power circuits, site assembly process, and quality-control process.
Modular standardized design consists of three major sub-system components: enclosure, tank, and remote radiator.
Throughput Capabilities
Peterson maintains a nationwide network of trusted key sub-component suppliers. These suppliers overlap, giving redundancy, and can increase output in short spurts, giving flexibility. Our network covers enclosures, fuel tanks, selective catalytic reduction systems, battery systems, high resistance grounds, breaker cabinets (with thermal monitoring and surge protection), and fuel polishing.
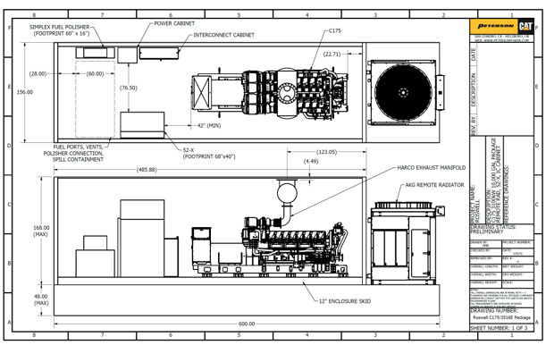
3MW Genpack
Bill of Materials:
- Sub-base Fuel Tank
- Remote Radiator Package
- Skidded Sound Attenuated Enclosure
- Cat C175 3MW Genset
- Freestanding Output Circuit Breaker/Cam-loc Panel
- Exhaust System
- Shore Power Cabinet
- Control Cabinet
- Automated Fuel Polishing System


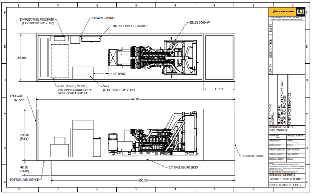
One-Design 3MW Genpack
Bill of Materials:
- Skidded Sound Attenuated Enclosure
- Cat C175 3MW Genset with Mechanically Driven Radiator
- Freestanding Output Circuit Breaker/Cam-loc Panel
- Shore Power Cabinet
- Control Cabinet
- Automated Fuel Polishing System
- Exhaust System Skid
- Sub-base Fuel Tank


3MW Genpack Pros and Cons
| Pros | Cons |
|---|---|
| Smaller enclosure | Remote radiator adds complexity |
| Engineered airflow through enclosure | No snow hood |
| Enclosure will not change for size for different locations | |
| Shipping (no perimeter frame trailers) |
One-Design 3MW Genpack Pros and Cons
| Pros | Cons |
|---|---|
| Simpler design | Increased airflow through enclosure |
| Faster Installation | Slower starting time (minimal) |
| Typical design for back-up gensets | Larger enclosure |
| No snow hood |
G3520: 3MW Fast Start Gas Genset
Quick deployment times:
- Pre-fabricated modular system to provide customers with site specific flexibility in a single footprint
- Designed to work in conjunction with other energy solutions to tailor performance to client's needs
- Operates on Low Pressure Natural Gas (2.5 PSIG)
- Renewable Natural Gas (RNG) and hydrogen (H2) compatible
Response
- 10 second NFPA start time
- Rapid response to load changes
Operation
- Standalone or hybrid with an optional Battery Energy Storage System (BESS)
- Back-up power capable of load-following during grid interruptions
- Highly efficient
System Overview
- 3.0 MW Cat G3520 natural gas reciprocating engine
- Acoustic enclosure built to client standards, with roof mounted cooling system
- Isolated electrical room for switchgear and controls
- Meets local air quality standards for emergency use
- Highly scalable product components
- Options:
- Scalable battery storage can be easily added for blipless response times and full hybridization
- BACT emissions controls rated for continuous operation
- Cat Microgrid Master Controller which seamlessly manages hybrid operations when paired with other energy solutions


WARNING